skip to main content

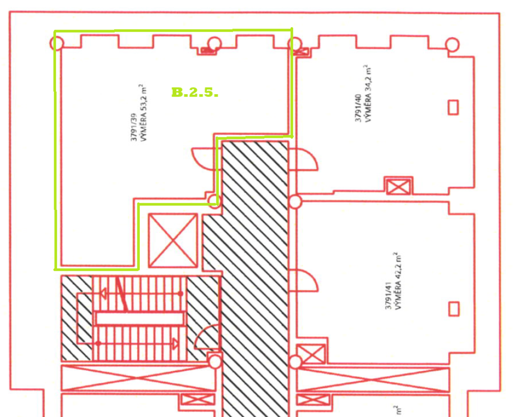
Byt č. 3791/39 2kk ul. Lorencova, Zlín B.2.5.

dražba

Novostavba bytové jednotky o dispozici 2+kk a podlahové ploše 53,2 m2, situovaná ve 2. nadzemním podlaží moderního bytového domu na ulici Lorencova v centru Zlína. Součástí parkovací stání.

Byt B.2.5. č. 3791/39, parkovací stání P26 a sklepní kóje S30, ulice Lorencova, Zlín | Podrobný popis

Bytová jednotka č. 3791/39 o dispozici 2+kk a podlahové ploše 53,2 m2, situovanou ve 2. nadzemním podlaží moderního bytového domu na ulici Lorencova v samotném centru Zlína.

Dispozice a výměra

Byt je řešen jako praktické 2+kk - obývací pokoj s kuchyňským koutem, samostatná ložnice, koupelna se sprchovým koutem a WC. Dispozice nabízí funkční rozdělení denní a klidové části a je vhodná jak pro vlastní bydlení, tak jako investiční příležitost.

Příslušenství a podíly

K bytové jednotce náleží:

  • garážové parkovací stání
  • sklepní kóje - nedokončeno
  • spoluvlastnický podíl na společných částech domu a pozemku ve výši id. 532/70508

Technický stav

Jednotka je dle znaleckého posudku v rozestavěném stavu s mírou dokončenosti cca 90 % 

Konstrukční části stavby jsou dokončeny, instalace jsou z velké části provedeny. K dokončení je zejména:

  • finální podlahová krytina
  • dokončení kuchyňské linky
  • případné drobné dokončovací práce dle zvoleného standardu

Byt tak umožňuje budoucímu vlastníkovi dokončit interiér podle vlastních představ a standardu.

Bytový dům

Dům je zděný, zateplený kontaktním zateplovacím systémem, s plastovými či hliníkovými okny a osobním výtahem. Objekt má celkem 11 podlaží a kombinuje rezidenční i nebytové prostory 

Lokalita

Lorencova ulice se nachází v širším centru Zlína s velmi dobrou dostupností:

  • MHD v docházkové vzdálenosti
  • kompletní občanská vybavenost - obchody, restaurace, služby, zdravotnická zařízení
  • dobré napojení na hlavní silniční tahy

Jedná se o lokalitu vhodnou jak pro klidné městské bydlení, tak pro dlouhodobý pronájem.



Katastrální/detailní popis

  • jednotka č. 3791/39, způsob využití – byt, zapsáno na LV 29422, vymezeno v: 

Budova: Zlín, č.p. 3791, obč.vyb, LV 6296, na parcele č. St. 4600

Parcela: St. 4600 zastavěná plocha a nádvoří, 505/10 ostatní plocha, 505/17 ostatní plocha, 505/19 ostatní plocha, 505/22 ostatní plocha

  • spoluvlastnický podíl ve výši id. 532/70508 na společných částech nemovitosti budovy č.p. 3791, obč.vyb, stojící na parcele č. St. 4600, zapsáno na LV 6296
  • spoluvlastnický podíl ve výši id. 532/70508 na společných částech nemovitostí parcel č. St. 4600 zastavěná plocha a nádvoří, 505/10 ostatní plocha, 505/17 ostatní plocha, 505/19 ostatní plocha, 505/22 ostatní plocha,  součástí je stavba č.p. 3791, obč.vyb, zapsáno na LV 6296 

vše zapsáno v katastru nemovitostí u Katastrálního úřadu pro Zlínský kraj, Katastrální pracoviště Zlín, obec Zlín (okres Zlín), část obce Zlín, katastrální území Zlín na LV 29422, 6296.



Zástavní práva, závazky

Veškerá práva (Zástavní právo smluvní, Závazek nezajistit zást. pr. ve výhodnějším pořadí nový dluh, Závazek neumožnit zápis nového zást. práva namísto starého, Zákaz zcizení, Zákaz zatížení, Závazek nezajistit zást. pr. ve výhodnějším pořadí nový dluh, Závazek neumožnit zápis nového zást. práva namísto starého)  zapsána v katastru nemovitostí u Katastrálního úřadu pro Zlínský kraj, Katastrální pracoviště Zlín, obec Zlín (okres Zlín), část obce Zlín, katastrální území Zlín na LV 29422, 6296.

Sekce C (Věcná práva zatěžující nemovitosti)

Věcné břemeno chůze a jízdy (oprávněný/á parcela č. St.1965/2) Popis: dle rozsudku soudu v rozsahu geometrického plánu č. 6585-16/2009. Oprávněná nemovitost: parcela č. St.1965/2. Povinná nemovitost: parcela č. 505/10. Listiny: Název: Rozsudek soudu o určení existence věcného břemene 10C-129/2004–645 ze dne 24.09.2013. Právní moc ke dni 26.05.2014. Právní účinky zápisu k okamžiku 29.07.2014 14:18:31. Zápis proveden dne 09.09.2014. Číslo: V-7515/2014-705.

Věcné břemeno cesty (oprávněný/á parcela č. 503/8). Popis: a stezky – služebnost v rozsahu dle smlouvy a geometrického plánu (část \"B\") č. 9182-872/2020. Oprávněná nemovitost: parcela č. 503/8 Povinná nemovitost: parcela č. 505/10 Listiny: Název: Smlouva o zřízení věcného břemene – bezúplatná ze dne 31.08.2020. Právní účinky zápisu k okamžiku 17.12.2020 11:02:38. Zápis proveden dne 18.01.2021. Číslo: V-11526/2020-705.





Log

Kontaktní osoba

Klára Křížová

Adresa

Prohlídky

Forma prodeje Elektronická dražba dobrovolná/veřejná
Stav vydraženo
Cena vydražení 4 328 000 Kč
Typ Nemovité věci > Byty
Číslo účtu 131-8770237/0100
Odhadní cena 5 410 000 Kč
Vyvolávací cena 4 328 000 Kč
Minimální hodnota příhozu 20 000 Kč
Aktuální příhoz {{ currentBid }} Kč
Dražební jistota 700 000 Kč
Termín konání 9.4.2026 09:30:00
Předpokládaný konec 9.4.2026 10:30:00
Čas do konce již proběhlo
Aktuální datum 23.5.2026 15:12:35

Dokumenty


Aktuální nabídka

přímý prodej
...

Město Skuteč nabízí stavební pozemky v lokalitě Špitálská louka


dražba
...

Rodinný dům se zahradou Proseč u Skutče


Nejnižší podání: 3 807 000 Kč
Termín konání: 28. 5. 2026, 09:30
dražba
...

Město Skuteč stavební pozemky Špitálská louka - dražba D01 - parcela 1096/10 o velikosti 422 m2


Nejnižší podání: 1 021 240 Kč
Termín konání: 28. 5. 2026, 10:00
dražba
...

Město Skuteč stavební pozemky Špitálská louka - dražba D02 - parcela 1096/11 o velikosti 477 m2


Nejnižší podání: 1 154 340 Kč
Termín konání: 28. 5. 2026, 10:15
dražba
...

Město Skuteč stavební pozemky Špitálská louka - dražba D03 - parcela 1096/12 o velikosti 438 m2


Nejnižší podání: 1 059 960 Kč
Termín konání: 28. 5. 2026, 10:30
dražba
...

Město Skuteč stavební pozemky Špitálská louka - dražba D04 - parcela 1096/13 o velikosti 514 m2


Nejnižší podání: 1 243 880 Kč
Termín konání: 28. 5. 2026, 10:45
dražba
...

Město Skuteč stavební pozemky Špitálská louka - dražba D05 - parcela 1093/20 o velikosti 430 m2


Nejnižší podání: 1 040 600 Kč
Termín konání: 28. 5. 2026, 11:00
dražba
...

Město Skuteč stavební pozemky Špitálská louka - dražba D06 - parcela 1093/21 o velikosti 395 m2


Nejnižší podání: 955 900 Kč
Termín konání: 28. 5. 2026, 11:15
dražba
...

Město Skuteč stavební pozemky Špitálská louka - dražba D07 - parcela 1093/22 o velikosti 402 m2


Nejnižší podání: 972 840 Kč
Termín konání: 28. 5. 2026, 11:30
dražba
...

Město Skuteč stavební pozemky Špitálská louka - dražba D08 - parcela 1093/23 o velikosti 406 m2


Nejnižší podání: 982 520 Kč
Termín konání: 28. 5. 2026, 11:45
dražba
...

Město Skuteč stavební pozemky Špitálská louka - dražba D09 - parcela 1094/7 o velikosti 384 m2


Nejnižší podání: 929 280 Kč
Termín konání: 28. 5. 2026, 12:00
dražba
...

Město Skuteč stavební pozemky Špitálská louka - dražba D10 - parcela 1094/8 o velikosti 427 m2


Nejnižší podání: 1 033 340 Kč
Termín konání: 28. 5. 2026, 12:15
Jak uspět a vydražit

Jak uspět a vydražit

1. Registrovat se

2. Uhradit jistotu = vratnou kauci

3. Přihlásit se

Zobrazit správný postup