skip to main content

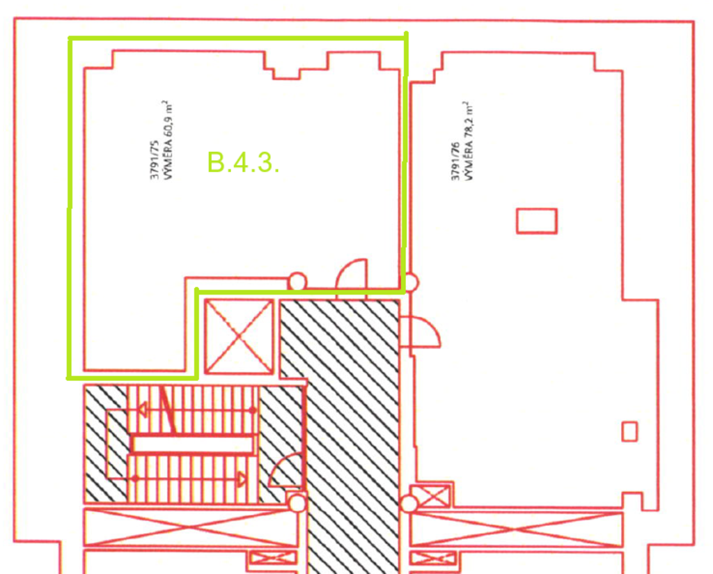
Byt č. 3791/75 2kk ul. Lorencova, Zlín B.4.3.

dražba

Novostavba bytové jednotky o dispozici 2+kk a podlahové ploše 60,9 m2, situovaná ve 4. nadzemním podlaží moderního bytového domu na ulici Lorencova v centru Zlína.

Od dražby bylo upuštěno!

Byt B.4.3. č. 3791/75, sklepní kóje S36, ulice Lorencova, Zlín | Podrobný popis

Bytová jednotka č. 3791/75 o dispozici 2+kk a podlahové ploše 60,9 m2, situovaná ve 4. nadzemním podlaží moderního bytového domu na ulici Lorencova v centru Zlína.

Dispozice a stav bytu

Byt je řešen jako praktické 2+kk s dostatečnou výměrou 60,9 m2, která umožňuje komfortní bydlení jednotlivci i páru.

Jednotka je aktuálně ve fázi rozestavěnosti přibližně 70 %. To představuje ideální příležitost pro dokončení dle vlastních představ a standardu budoucího vlastníka.

V bytě jsou dokončeny nosné konstrukce, okna, základní rozvody a část instalací. Naopak chybí finální povrchy podlah, kompletní vnitřní povrchové úpravy, sanitární vybavení, kuchyňská linka a část technologií. Tento stav umožňuje přizpůsobení interiéru individuálním požadavkům.

Příslušenství

K bytové jednotce náleží sklepní kóje - nedokončeno. Součástí převodu je také odpovídající spoluvlastnický podíl na společných částech domu a pozemku.

Bytový dům

Dům je zděné konstrukce, má 11 podlaží a je rozdělen do několika funkčních celků. Objekt je zateplen kontaktním zateplovacím systémem, disponuje výtahem a moderním architektonickým řešením. Součástí domu jsou rovněž nebytové prostory a technické zázemí.

Lokalita

Nemovitost se nachází ve vyhledávané části města s kompletní občanskou vybaveností v bezprostředním okolí. V docházkové vzdálenosti je zastávka MHD, obchody, služby i další občanská infrastruktura. Výborné napojení na hlavní dopravní tahy zajišťuje pohodlné spojení v rámci města i mimo něj.

Investiční potenciál

Díky poloze v širším centru krajského města, dispozici 2+kk a možnosti dokončení dle vlastního standardu je jednotka vhodná jak pro vlastní bydlení, tak jako investiční příležitost k následnému pronájmu.



Katastrální/detailní popis

  • jednotka č. 3791/75, způsob využití – byt, zapsáno na LV 29422, vymezeno v: 

Budova: Zlín, č.p. 3791, obč.vyb, LV 6296, na parcele č. St. 4600

Parcela: St. 4600 zastavěná plocha a nádvoří, 505/10 ostatní plocha, 505/17 ostatní plocha, 505/19 ostatní plocha, 505/22 ostatní plocha

  • spoluvlastnický podíl ve výši id. 609/70508 na společných částech nemovitosti budovy č.p. 3791, obč.vyb, stojící na parcele č. St. 4600, zapsáno na LV 6296
  • spoluvlastnický podíl ve výši id. 609/70508 na společných částech nemovitostí parcel č. St. 4600 zastavěná plocha a nádvoří, 505/10 ostatní plocha, 505/17 ostatní plocha, 505/19 ostatní plocha, 505/22 ostatní plocha,  součástí je stavba č.p. 3791, obč.vyb, zapsáno na LV 6296 

vše zapsáno v katastru nemovitostí u Katastrálního úřadu pro Zlínský kraj, Katastrální pracoviště Zlín, obec Zlín (okres Zlín), část obce Zlín, katastrální území Zlín na LV 29422, 6296.



Zástavní práva, závazky

Veškerá práva (Zástavní právo smluvní, Závazek nezajistit zást. pr. ve výhodnějším pořadí nový dluh, Závazek neumožnit zápis nového zást. práva namísto starého, Zákaz zcizení, Zákaz zatížení, Závazek nezajistit zást. pr. ve výhodnějším pořadí nový dluh, Závazek neumožnit zápis nového zást. práva namísto starého)  zapsána v katastru nemovitostí u Katastrálního úřadu pro Zlínský kraj, Katastrální pracoviště Zlín, obec Zlín (okres Zlín), část obce Zlín, katastrální území Zlín na LV 29422, 6296.

Sekce C (Věcná práva zatěžující nemovitosti)

Věcné břemeno chůze a jízdy (oprávněný/á parcela č. St.1965/2) Popis: dle rozsudku soudu v rozsahu geometrického plánu č. 6585-16/2009. Oprávněná nemovitost: parcela č. St.1965/2. Povinná nemovitost: parcela č. 505/10. Listiny: Název: Rozsudek soudu o určení existence věcného břemene 10C-129/2004–645 ze dne 24.09.2013. Právní moc ke dni 26.05.2014. Právní účinky zápisu k okamžiku 29.07.2014 14:18:31. Zápis proveden dne 09.09.2014. Číslo: V-7515/2014-705.

Věcné břemeno cesty (oprávněný/á parcela č. 503/8). Popis: a stezky – služebnost v rozsahu dle smlouvy a geometrického plánu (část \"B\") č. 9182-872/2020. Oprávněná nemovitost: parcela č. 503/8 Povinná nemovitost: parcela č. 505/10 Listiny: Název: Smlouva o zřízení věcného břemene – bezúplatná ze dne 31.08.2020. Právní účinky zápisu k okamžiku 17.12.2020 11:02:38. Zápis proveden dne 18.01.2021. Číslo: V-11526/2020-705.





Log

Kontaktní osoba

Klára Křížová

Adresa

Prohlídky

Forma prodeje Elektronická dražba dobrovolná/veřejná
Typ Nemovité věci > Byty
Číslo účtu 131-8770237/0100
Odhadní cena 5 302 000 Kč
Vyvolávací cena 4 241 600 Kč
Minimální hodnota příhozu 25 000 Kč
Aktuální příhoz {{ currentBid }} Kč
Dražební jistota 650 000 Kč
Termín konání 9.4.2026 10:00:00
Předpokládaný konec 9.4.2026 11:00:00
Stav upuštěno
Aktuální datum 23.5.2026 15:15:11

Dokumenty


Aktuální nabídka

přímý prodej
...

Město Skuteč nabízí stavební pozemky v lokalitě Špitálská louka


dražba
...

Rodinný dům se zahradou Proseč u Skutče


Nejnižší podání: 3 807 000 Kč
Termín konání: 28. 5. 2026, 09:30
dražba
...

Město Skuteč stavební pozemky Špitálská louka - dražba D01 - parcela 1096/10 o velikosti 422 m2


Nejnižší podání: 1 021 240 Kč
Termín konání: 28. 5. 2026, 10:00
dražba
...

Město Skuteč stavební pozemky Špitálská louka - dražba D02 - parcela 1096/11 o velikosti 477 m2


Nejnižší podání: 1 154 340 Kč
Termín konání: 28. 5. 2026, 10:15
dražba
...

Město Skuteč stavební pozemky Špitálská louka - dražba D03 - parcela 1096/12 o velikosti 438 m2


Nejnižší podání: 1 059 960 Kč
Termín konání: 28. 5. 2026, 10:30
dražba
...

Město Skuteč stavební pozemky Špitálská louka - dražba D04 - parcela 1096/13 o velikosti 514 m2


Nejnižší podání: 1 243 880 Kč
Termín konání: 28. 5. 2026, 10:45
dražba
...

Město Skuteč stavební pozemky Špitálská louka - dražba D05 - parcela 1093/20 o velikosti 430 m2


Nejnižší podání: 1 040 600 Kč
Termín konání: 28. 5. 2026, 11:00
dražba
...

Město Skuteč stavební pozemky Špitálská louka - dražba D06 - parcela 1093/21 o velikosti 395 m2


Nejnižší podání: 955 900 Kč
Termín konání: 28. 5. 2026, 11:15
dražba
...

Město Skuteč stavební pozemky Špitálská louka - dražba D07 - parcela 1093/22 o velikosti 402 m2


Nejnižší podání: 972 840 Kč
Termín konání: 28. 5. 2026, 11:30
dražba
...

Město Skuteč stavební pozemky Špitálská louka - dražba D08 - parcela 1093/23 o velikosti 406 m2


Nejnižší podání: 982 520 Kč
Termín konání: 28. 5. 2026, 11:45
dražba
...

Město Skuteč stavební pozemky Špitálská louka - dražba D09 - parcela 1094/7 o velikosti 384 m2


Nejnižší podání: 929 280 Kč
Termín konání: 28. 5. 2026, 12:00
dražba
...

Město Skuteč stavební pozemky Špitálská louka - dražba D10 - parcela 1094/8 o velikosti 427 m2


Nejnižší podání: 1 033 340 Kč
Termín konání: 28. 5. 2026, 12:15
Jak uspět a vydražit

Jak uspět a vydražit

1. Registrovat se

2. Uhradit jistotu = vratnou kauci

3. Přihlásit se

Zobrazit správný postup