skip to main content

Mezonetový byt 2+1, Brno - Veveří, ulice Bayerova

dražba

Virtuální prohlídka zde: Byt Bayerova, Brno - Veveří 

Byt 2+1, Brno - Veveří, ulice Bayerova | Podrobný popis

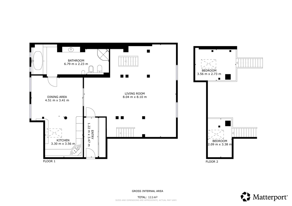
Velkorysý podkrovní byt 2+1 (122 m²) v srdci vyhledávané čtvrti Veveří

Nabízíme k prodeji unikátní, prostornou bytovou jednotku o dispozici 2+1, situovanou v klidné, a přesto centrální části Brna na ulici Bayerova. Tento byt je ideální volbou pro ty, kteří hledají kombinaci bydlení v historické cihlové zástavbě s moderním komfortem podkrovního prostoru a nadstandardní metráží.

Dispozice a interiér

Byt o celkové užitné ploše 122,23 m² se nachází v 7. nadzemním podlaží (půdní vestavba z roku 2004) a nabízí neobvykle vzdušné prostory:

  • Dominantní obývací pokoj (53,90 m²): Skutečné srdce bytu, které díky své rozloze nabízí nepřeberné možnosti uspořádání.
  • Prostorná kuchyně s jídelnou (26,95 m²): Místnost s dostatkem prostoru pro velký jídelní stůl i moderní kuchyňskou linku.
  • Nadstandardní koupelna (18,41 m²): Velkoryse řešená koupelna vybavená vanou, sprchovým koutem, umyvadlem, toaletou i bidetem.
  • Dvě spací galerie (12,36 m²): Praktické nástavby přístupné po dřevěném schodišti, které efektivně využívají vysoké stropy a mohou sloužit jako ložnice nebo úložné prostory.
  • Vybavení: Byt je vybaven klimatizací, vestavěnými skříněmi a bezpečnostními vstupními dveřmi. Ohřev vody a vytápění zajišťuje vlastní plynový kotel přímo v bytě.

O domě

Cihlový bytový dům prošel v posledních letech rozsáhlou revitalizací, která zaručuje nízké náklady na údržbu a vysoký komfort bydlení:

  • Nová zateplená fasáda (2022).
  • Moderní výtah a nové rozvody elektroinstalace (2012).
  • Výměna stoupaček, rozvodů vody a odpadů (2009).
  • Okna jsou kombinací dřevěných EURO oken a střešních oken, která zajišťují dostatek denního světla. K bytu náleží sklepní kóje v 1. PP.

Lokalita – bydlení na dobré adrese

Ulice Bayerova v k.ú. Veveří patří k nejžádanějším brněnským adresám.

  • Relaxace: Jen pár minut chůze od vyhlášeného parku Lužánky.
  • Dostupnost: Výborné spojení MHD a docházková vzdálenost do samotného centra města (náměstí Svobody, Moravské náměstí).
  • Občanská vybavenost: V bezprostředním okolí najdete kavárny, drobné provozovny, restaurace i školy.

Tato nemovitost kombinuje kouzlo širšího centra Brna s klidem a soukromím nejvyššího patra. Je vhodná jak pro náročné vlastní bydlení, tak jako prestižní investiční příležitost.

Klíčové parametry v kostce:

  • Užitná plocha: 122,23 m²
  • Dispozice: 2+1 se dvěma spacími galeriemi
  • Konstrukce: Cihla (půdní vestavba r. 2004)
  • Patro: 7. NP s výtahem
  • Vytápění: Vlastní plynový kotel
  • Bonusy: Klimatizace, v blízkosti parku Lužánky

Máte zájem o prohlídku tohoto jedinečného bytu? Neváhejte nás kontaktovat.



Katastrální/detailní popis

  • jednotka č. 803/25, způsob využití – byt, zapsáno na LV 6162, vymezeno v: 

Budova: Veveří, č.p. 801, 803, 804, byt.dům, LV 4618, na parcele č. 1552,  1553,  1554

Parcela: 1552 zastavěná plocha a nádvoří, 1553 zastavěná plocha a nádvoří, 1554 zastavěná plocha a nádvoří

  • spoluvlastnický podíl ve výši id. 12223/519071 na společných částech nemovitosti budovy č.p. 801, 803, 804, byt.dům, stojící na parcelách č. 1552, 1553, 1554, zapsáno na LV 4618
  • spoluvlastnický podíl ve výši id. 12223/519071 na společných částech nemovitostí parcel č. 1552 zastavěná plocha a nádvoří, 1553 zastavěná plocha a nádvoří, 1554 zastavěná plocha a nádvoří,  na pozemku stojí stavba č.p. 801, 803, 804, byt.dům, zapsáno na LV 4618 

vše zapsáno v katastru nemovitostí u Katastrálního úřadu pro Jihomoravský kraj, Katastrální pracoviště Brno-město, obec Brno (okres Brno-město), část obce Veveří, katastrální území Veveří na LV 6162, 4618.



Zástavní práva, závazky

Veškerá práva (Zástavní právo smluvní, Závazek nezajistit zást. pr. ve výhodnějším pořadí nový dluh, Závazek neumožnit zápis nového zást. práva namísto starého, Zákaz zcizení, Zákaz zatížení, Závazek nezajistit zást. pr. ve výhodnějším pořadí nový dluh, Závazek neumožnit zápis nového zást. práva namísto starého) zapsáno v katastru nemovitostí u Katastrálního úřadu pro Jihomoravský kraj, Katastrální pracoviště Brno-město, obec Brno (okres Brno-město), část obce Veveří, katastrální území Veveří na LV 6162, 4618.





Log

Kontaktní osoba

Tomáš Zvěřina

Adresa

Prohlídky

Forma prodeje Elektronická dražba dobrovolná/veřejná
Stav Nevydraženo
Typ Nemovité věci > Byty
Číslo účtu 123-7582150237/0100
Odhadní cena 11 000 000 Kč
Vyvolávací cena 11 000 000 Kč
Minimální hodnota příhozu 10 000 Kč
Aktuální příhoz {{ currentBid }} Kč
Dražební jistota 600 000 Kč
Termín konání 9.4.2026 10:30:00
Předpokládaný konec 9.4.2026 11:30:00
Čas do konce již proběhlo
Aktuální datum 16.5.2026 12:59:52

Dokumenty


Aktuální nabídka

dražba
...

Byt 2+1, Brno - Veveří, ulice Bayerova


Nejnižší podání: 9 350 000 Kč
Termín konání: 19. 5. 2026, 10:30
výběrové řízení
...

Nebytový prostor a podíl na garážovém stání, ulice Křižíkova, Praha - Karlín


Uzavření nabídek: 21. 5. 2026, 11:00
přímý prodej
...

Město Skuteč nabízí stavební pozemky v lokalitě Špitálská louka


dražba
...

Rodinný dům se zahradou Proseč u Skutče


Nejnižší podání: 3 807 000 Kč
Termín konání: 28. 5. 2026, 09:30
dražba
...

Město Skuteč stavební pozemky Špitálská louka - dražba D01 - parcela 1096/10 o velikosti 422 m2


Nejnižší podání: 1 021 240 Kč
Termín konání: 28. 5. 2026, 10:00
dražba
...

Město Skuteč stavební pozemky Špitálská louka - dražba D02 - parcela 1096/11 o velikosti 477 m2


Nejnižší podání: 1 154 340 Kč
Termín konání: 28. 5. 2026, 10:15
dražba
...

Město Skuteč stavební pozemky Špitálská louka - dražba D03 - parcela 1096/12 o velikosti 438 m2


Nejnižší podání: 1 059 960 Kč
Termín konání: 28. 5. 2026, 10:30
dražba
...

Město Skuteč stavební pozemky Špitálská louka - dražba D04 - parcela 1096/13 o velikosti 514 m2


Nejnižší podání: 1 243 880 Kč
Termín konání: 28. 5. 2026, 10:45
dražba
...

Město Skuteč stavební pozemky Špitálská louka - dražba D05 - parcela 1093/20 o velikosti 430 m2


Nejnižší podání: 1 040 600 Kč
Termín konání: 28. 5. 2026, 11:00
dražba
...

Město Skuteč stavební pozemky Špitálská louka - dražba D06 - parcela 1093/21 o velikosti 395 m2


Nejnižší podání: 955 900 Kč
Termín konání: 28. 5. 2026, 11:15
dražba
...

Město Skuteč stavební pozemky Špitálská louka - dražba D07 - parcela 1093/22 o velikosti 402 m2


Nejnižší podání: 972 840 Kč
Termín konání: 28. 5. 2026, 11:30
dražba
...

Město Skuteč stavební pozemky Špitálská louka - dražba D08 - parcela 1093/23 o velikosti 406 m2


Nejnižší podání: 982 520 Kč
Termín konání: 28. 5. 2026, 11:45
Jak uspět a vydražit

Jak uspět a vydražit

1. Registrovat se

2. Uhradit jistotu = vratnou kauci

3. Přihlásit se

Zobrazit správný postup