skip to main content

Stavební pozemek Bartoušov, s hrubou stavbou RD

přímý prodej

Kupní cena: pozemek 2.100,- Kč/m2 + hrubá stavba 3.56 mil.Kč (tzn. 80% z hodnoty stavby, v r.2023 proinvestovaná částka 4.45 mil.Kč vč.DPH)

Stavební parcela s hrubou stavbou RD s dvojgaráží Bartoušov u Havlíčkova Brodu | Podrobný popis

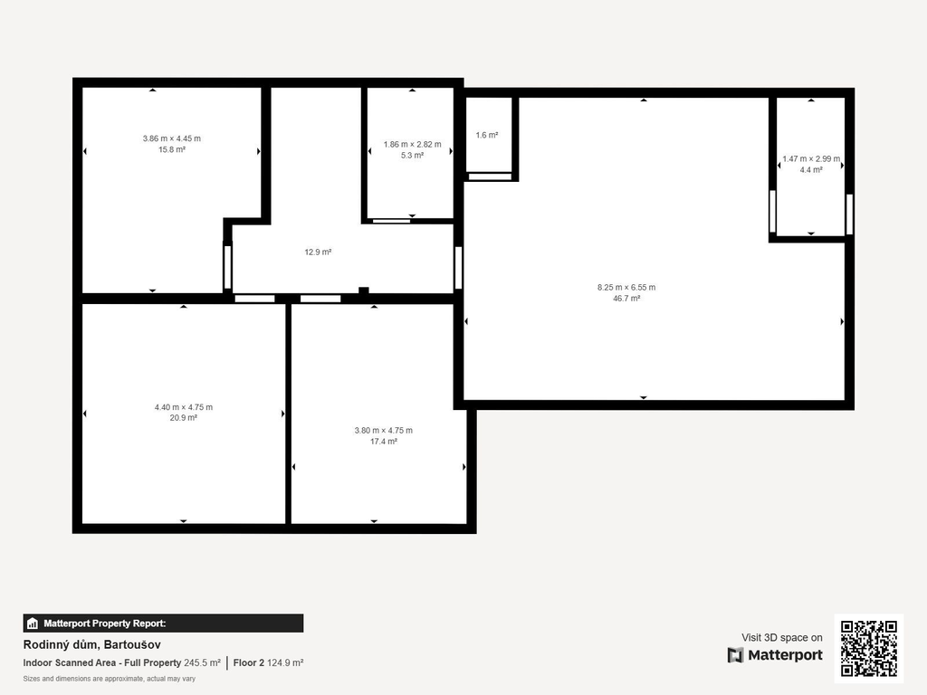
Stavební pozemek o výměře 842 m2, na kterém se nachází již hotová hrubá stavba rodinného domu s dvojgaráží, terasou a zahradou v obci Bartoušov u Havlíčkova Brodu.

Dispozice, vybavení a hodnota hrubé stavby
 Rodinný dům je postaven jako dvojpodlažní. V 1.NP je vstup, dvojgaráž, technická místnost, v bytové části pak obývací pokoj spojený s kuchyní s terasou a s krbem, samostatný pokoj/ložnice, koupelna a pod-schodišťový prostor. Ve 2.NP jsou tři pokoje/ložnice, koupelna a vstup do samostatně oddělitelné části, která může sloužit jako luxusní ložnice/pokoj/pokoj pro hosty apod... jako součást domu nebo samostatně jako provozovna, popř. kancelář nebo samostatná garsonka. Tento prostor má vlastní vstup po schodišti a vlastní sociální zařízení.
 
Stavba domu byla zahájena v r.2023. Aktuální nabídková cena hrubé stavby odpovídá 80% dle položkového rozpočtu.

Technické informace
 Na pozemku se nachází vrtaná studna, je zde přípojka na obecní vodovod.
 Stavební materiály jsou použity nadstandartní: termoizolační bloky POROTHERM EKO, střešní krytina TONDACH STODO AMADEUS, příčky z AKU POROTHERM CIHEL, komín SCHIEDEL.

Okolí a občanská vybavenost:

Díky obchvatu je Bartoušov dopravně napojen na 5km vzdálený Havlíčkův Brod a stal se integrovanou součástí této lokality. Obec má vlastní obecní úřad, leží v kraji Vysočina a je obklopena místní přírodou. Prochází tudy turistická značka i cyklotrasa.



Katastrální/detailní popis

předmětem prodeje je věc nemovitá:

- pozemek p.č. 250/23  - orná půda, evidovaná výměra 842m2, způsob ochrany - zemědělský půdní fond

zapsaný v katastru nemovitostí u Katastrálního úřadu pro kraj Vysočina, Katastrální pracoviště Havlíčkův Brod, obec a katastrální území Bartoušov na LV 955







Log

Kontaktní osoba

Eva Jeřábková

Adresa

Prohlídky

Forma prodeje přímý prodej
Typ Nemovité věci > Domy
Minimální cena 5 328 000 Kč
Termín pro podání nabídek 31.3.2026
Aktuální datum 3.5.2026 4:23:14

Aktuální nabídka

dražba
...

Bytová jednotka 3+1, č. 240/1, na ulici Zámecká, v obci Náchod


Nejnižší podání: 3 607 000 Kč
Termín konání: 12. 5. 2026, 08:00
dražba
...

Bytová jednotka 3+1, č. 240/2, na ulici Zámecká, v obci Náchod


Nejnižší podání: 3 607 000 Kč
Termín konání: 12. 5. 2026, 08:00
dražba
...

Pozemek 2 274 m2 Svébohov, okres Šumperk


Nejnižší podání: 1 600 000 Kč
Termín konání: 12. 5. 2026, 09:15
dražba
...

RD Olšovec, okres Přerov


Nejnižší podání: 2 990 000 Kč
Termín konání: 12. 5. 2026, 13:00
výběrové řízení
...

Hotel Metternich Lázně Kynžvart, okres Cheb


Uzavření nabídek: 15. 5. 2026, 12:00
dražba
...

Byt 2+1, Brno - Veveří, ulice Bayerova


Nejnižší podání: 9 350 000 Kč
Termín konání: 19. 5. 2026, 10:30
dražba
...

Pozemky Bušín, okres Šumperk 3K


Nejnižší podání: 600 000 Kč
Termín konání: 21. 5. 2026, 10:00
výběrové řízení
...

Nebytový prostor a podíl na garážovém stání, ulice Křižíkova, Praha - Karlín


Uzavření nabídek: 21. 5. 2026, 11:00
dražba
...

Spoluvlastnický podíl 1/5 na RD se zahradou Lány, okres Kladno


Nejnižší podání: 900 000 Kč
Termín konání: 21. 5. 2026, 10:20
přímý prodej
...

Město Skuteč nabízí stavební pozemky v lokalitě Špitálská louka


dražba
...

Rodinný dům se zahradou Proseč u Skutče


Nejnižší podání: 3 807 000 Kč
Termín konání: 28. 5. 2026, 09:30
dražba
...

Město Skuteč stavební pozemky Špitálská louka - dražba D01 - parcela 1096/10 o velikosti 422 m2


Nejnižší podání: 1 021 240 Kč
Termín konání: 28. 5. 2026, 10:00
Jak uspět a vydražit

Jak uspět a vydražit

1. Registrovat se

2. Uhradit jistotu = vratnou kauci

3. Přihlásit se

Zobrazit správný postup